Dom na sprzedaż Serock (gw), Jachranka

4 pokoje
128.48 m²
6 382,32 zł/m2
NHL-DS-386
Oblicz ratę kredytu

820 000 zł

Dom na sprzedaż
Nowa oferta

Szczegóły oferty

Symbol oferty NHL-DS-386
Powierzchnia 128,48 m²
Powierzchnia użytkowa [m2] 128,48 m²
Powierzchnia działki [m2] 450 m²
Liczba pokoi 4
Liczba sypialni 3
Rodzaj domu bliźniak
Technologia budowlana pustak
Standard
Liczba pięter w budynku 1
Garaż 1
Okna PCV 3 szyby, ciepły montaż
Instalacje ELEKTRYCZNA
Liczba tarasów 1
Zagosp. działki zagospodarowana
Ukształtowanie działki płaska
Kształt działki prostokąt
Pokrycie dachu dachówka
Stan budynku do wykończenia
Ogrodzenie działki metalowe
Rok budowy 2026
Gaz brak
Woda jest
Ogrzewanie pompa ciepła
Umeblowanie brak
Alarm tak
Tarasy taras duży
Drzwi antywłamaniowe tak
Prąd w budynku
Kanalizacja szambo
Pomieszczenia
Powierzchnia kuchni 9,60 m2
Liczba łazienek 2
Powierzchnia łazienki [m2] 8,64 m2

Opis nieruchomości

EKSKLUZYWNA OFERTA SPRZEDAŻY
Nowoczesna rezydencja w zabudowie bliźniaczej
Jachranka | gmina Serock


Elegancja. Komfort. Prestiżowa lokalizacja.

W sercu zielonej, kameralnej części Jachranki powstaje wyjątkowy dom w zabudowie bliźniaczej – projekt łączący nowoczesną architekturę, najwyższą jakość wykonania oraz ponadczasową estetykę.

To propozycja dla osób, które oczekują więcej niż standardu – poszukują przestrzeni, prywatności i komfortu życia w otoczeniu natury, z szybkim dostępem do Warszawy oraz terenów rekreacyjnych w okolicy Zalewu Zegrzyńskiego.

Planowany termin oddania do użytkowania: wrzesień 2026 r.


Parametry nieruchomości

  • Powierzchnia całkowita: 128,48 m²

  • Powierzchnia działki: 450 m² lub 500 m² (w zależności od segmentu)

  • Budynek: 1-piętrowy z możliwością aranżacji reprezentacyjnego poddasza nad częścią mieszkalną oraz garażem

  • Garaż w bryle budynku


Przemyślana architektura i funkcjonalny układ

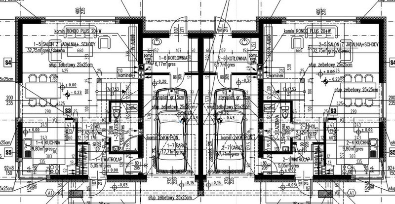
Parter – 77,60 m²

Elegancka, otwarta strefa dzienna zaprojektowana z myślą o komforcie codziennego życia i spotkaniach towarzyskich:

  • Wiatrołap – 5,05 m²

  • Hol – 2,42 m²

  • Kuchnia – 9,80 m² (z możliwością wyspy)

  • Przestronny salon z jadalnią – 32,75 m² (wyjście na taras i ogród)

  • Łazienka – 3,59 m²

  • Garaż z pomieszczeniem gospodarczym – 23,88 m²

Piętro – 50,99 m²

Komfortowa, prywatna strefa domowników:

  • Hol – 5,90 m²

  • Sypialnia główna – 14,55 m²

  • Pokój – 11,05 m²

  • Pokój – 10,82 m²

  • Przestronna łazienka – 8,67 m²

Dodatkową wartością jest możliwość aranżacji poddasza, które może stać się gabinetem, strefą relaksu, prywatną siłownią lub pokojem hobby.


Standard premium – technologia i jakość

Nieruchomość realizowana jest z najwyższej klasy materiałów budowlanych i instalacyjnych:

  • Ocieplenie styropianem wysokiej jakości

  • Elewacja wykończona trwałym tynkiem silikonowym

  • Poddasze ocieplone pianą PUR o grubości 25 cm

  • Energooszczędne okna PCV trzyszybowe

  • Ogrzewanie podłogowe w całym budynku

  • Możliwość instalacji pompy ciepła (na życzenie nabywcy)

  • Brama garażowa z zamontowanym już napędem

  • Instalacja elektryczna

  • Światłowód (internet wysokiej prędkości)

  • Własne ujęcie wody – studnia głębinowa

  • Kanalizacja – szambo 10 m³


Starannie zaprojektowana przestrzeń zewnętrzna

  • Taras, podjazd oraz opaska wokół domu wykończone kostką brukową

  • Metalowe ogrodzenie z czterech stron posesji

  • Przestronny ogród dający poczucie prywatności i swobody aranżacji


Lokalizacja, która podnosi wartość inwestycji

Jachranka to jedna z najbardziej pożądanych lokalizacji w gminie Serock – ceniona za ciszę, otoczenie lasów oraz bliskość wody. To miejsce idealne dla osób, które chcą połączyć prestiż życia pod miastem z wygodnym dojazdem do Warszawy.


Ta nieruchomość to harmonijne połączenie:

✔ nowoczesnej architektury
✔ wysokiego standardu wykonania
✔ komfortu i energooszczędności
✔ prestiżowej, zielonej lokalizacji


Zapraszam do kontaktu w celu uzyskania szczegółowych informacji oraz prezentacji inwestycji.
To wyjątkowa propozycja dla wymagających klientów, którzy szukają domu o podwyższonym standardzie w doskonałej lokalizacji.

Kalkulatory

Kalkulator kredytowy

Wysokość raty

PLN
%

Kalkulator kosztów

Taksa notarialna
(opłata notarialna)

Wniosek o wpis do KW

VAT od prowizji
agencji nieruchomości

VAT od taksy notarialnej
(opłaty notarialnej)

Prowizja agencji nieruchomości

Wypisy aktu notarialnego

Razem

Uwaga: mogą wystąpić dodatkowe opłaty za założenie księgi wieczystej oraz ustanowienie hipoteki.

PLN
PLN
PLN
PLN
PLN
%
PLN

Podobne oferty

Dom na sprzedaż

Serock (gw), Jachranka

4 pokoje 121 m2 6 456,42 zł/m2

Proszę wprowadzić poprawne imię i nazwisko
Proszę wprowadzić poprawny numer telefonu
Proszę wprowadzić poprawny adres e-mail
Proszę zaznaczyć wymagane zgody
Rozwiąż równanie:
23 9
Niepoprawny wynik